pro_jones house comp_ozeaneum stralsund :/archive
pro_raward house comp_H0223 faller -
pro_donut house comp_picknickers pro_burbach house
pro_ottilinger comp_tb berlin pro_tennyson rd
pro_taunusblick comp_branding dubai pro_collin st
pro_lumen studios comp_australia house -
pro_leiminger comp_container home -
pro_robodome comp_bauhaus museum d -
pro_lynch ave comp_museum des 20. jhd int_apartment cooper
pro_neotsfield ave - -
- inst_lola -
int_fns apartments inst_trivet fields -
int_restaurant visavis inst_hoeren soft transformations
int_schirncafe inst_cloud -
- inst_light bridges -
exh_synthetic biologies - inst_stadtlandfluss
cs_fsv stadion xs_collection inst_kaufhaut
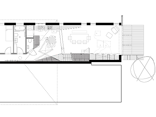
collin_ground floor
pro 2005/05 - 2008/02 extension and restauration of a house from the 50th, in the golden ground
material exposed concrete, oak, coated steel, linoleum, zink
client katja & brian jones
engineers bollinger-grohmann, ffm
03 13